|   | 
| 
 | |||||||
| Бюджетный автозвук и песочница. Раздел для новичков и тех, кто хочет пострроить простенькую аудиосистему с минимальными затратами. | 
|  | 
|  | Опции темы | Опции просмотра | 
|  21.10.2011, 14:53 | #1 | 
| Регистрация: 07.10.2010 Адрес: Nova Kahovka 
					Сообщений: 413
				 Вы сказали Спасибо: 21 
		
			
				Поблагодарили 29 раз(а) в 22 сообщениях
			
		
	 Репутация: 95 |  Макеты ящиков 
			
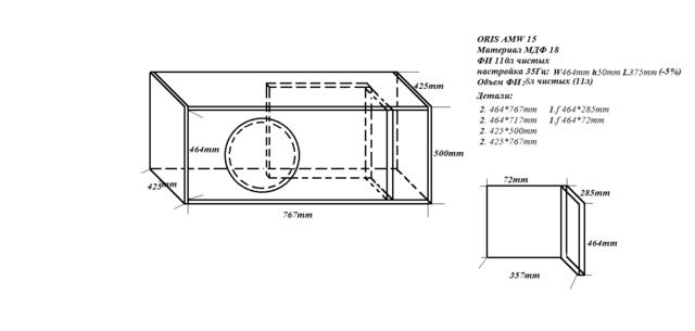
			Предлагаю развить тему с (макетами, чертежами, размерами,рисунками и т.д.) Для тех кому лень, неумеет,нет времени и т.д. считать яшики самостояельно. буду первым: | 
|   |     | 
|  21.10.2011, 18:55 | #3 | 
| Старейшина Регистрация: 06.09.2009 Адрес: Запорожье Возраст: 58 
					Сообщений: 1,163
				 Вы сказали Спасибо: 82 
		
			
				Поблагодарили 119 раз(а) в 98 сообщениях
			
		
	 Репутация: 177 |  Re: Макеты яшиков 
			
			Чего-то там не то См.пост 1 рис 1.(там где 45литров с настройкой якобы 38 гц) длина порта 420+230 это 650 или 65см(не доглядел - с учетом толщины стенок еще +4см-итого 69см).А порт указан 75см длина. При 65см длине объем ящика (и это без без учета динамика,но с вычетом объема фазика и его внутренней стенки) выходит в районе 49л, а при 75см в районе 46л(соответственно при 69см где-то посередине).И где тут правда? Может лучше таки не лениться, а считать самому.Действия то простые. Последний раз редактировалось ФАНТОР; 21.10.2011 в 19:39. Причина: Добавлено сообщение | 
|   |     | 
|  21.10.2011, 19:49 | #5 | 
| Старейшина Регистрация: 06.09.2009 Адрес: Запорожье Возраст: 58 
					Сообщений: 1,163
				 Вы сказали Спасибо: 82 
		
			
				Поблагодарили 119 раз(а) в 98 сообщениях
			
		
	 Репутация: 177 |  Re: Макеты яшиков 
			
			Все одно не то, к 230 надо еще добавить по 20 с обоих сторон-толщина стенок.Ведь 230 изнутри указано.Так что правильно 69см.Ну на закругление еще можно пару накинуть.
		 | 
|   |     | 
|  21.10.2011, 20:03 | #6 | 
| Регистрация: 07.10.2010 Адрес: Nova Kahovka 
					Сообщений: 413
				 Вы сказали Спасибо: 21 
		
			
				Поблагодарили 29 раз(а) в 22 сообщениях
			
		
	 Репутация: 95 |  Re: Макеты яшиков смотри всего 69см ето если не учитывать тот квадрат где закругление. (розчёты его не учитывают) а если учесть то +ещё 6см 69+6=75   | 
|   |     | 
|  21.10.2011, 20:25 | #7 | 
| Старейшина Регистрация: 06.09.2009 Адрес: Запорожье Возраст: 58 
					Сообщений: 1,163
				 Вы сказали Спасибо: 82 
		
			
				Поблагодарили 119 раз(а) в 98 сообщениях
			
		
	 Репутация: 177 |  Re: Макеты яшиков 
			
			Все правильно.Только удобнее для понимания 2 раза по 3 см Так нагляднее.И все понятно.С объемчиком там все одно не чисто и при 75. Последний раз редактировалось ФАНТОР; 19.05.2012 в 15:00. | 
|   |     | 
|  22.10.2011, 10:24 | #10 | 
| Старейшина Регистрация: 21.09.2007 Адрес: Киев Возраст: 57 
					Сообщений: 1,446
				 Вы сказали Спасибо: 128 
		
			
				Поблагодарили 422 раз(а) в 191 сообщениях
			
		
	 Репутация: 628 |  Re: Макеты яшиков А краевой эффект расположения порта возле стенки учитывал? К вычисленной длине порта прибавь 4 - 5 см. с внутренней стороны и 2-3см с внешней. В сумме добавь 7 см. Читайте, учитесь, всё у вас получится! | 
|   |     | 
|  22.10.2011, 12:12 | #11 | 
| Регистрация: 07.01.2011 Адрес: Первомайск Николаевской Возраст: 67 
					Сообщений: 718
				 Вы сказали Спасибо: 91 
		
			
				Поблагодарили 10 раз(а) в 10 сообщениях
			
		
	 Репутация: 74 |  Re: Макеты яшиков 
			
			из этого  становится понятно,что тема оч.не проста и оч.многим просто не по зубам.,. если обсуждение будет чуть подробнее - это уже будет не ликбез,а хорошее ПТУ!  АФ-Фтору топика - респект! | 
|   |     | 
|  22.10.2011, 18:23 | #12 | 
| Регистрация: 07.10.2010 Адрес: Nova Kahovka 
					Сообщений: 413
				 Вы сказали Спасибо: 21 
		
			
				Поблагодарили 29 раз(а) в 22 сообщениях
			
		
	 Репутация: 95 |  Re: Макеты яшиков Добавлено через 1 минуту оказывается что нужно не просто картинки смотреть  ) Последний раз редактировалось sinyagaev; 22.10.2011 в 18:25. Причина: Добавлено сообщение | 
|   |     | 
|  22.10.2011, 18:43 | #13 | 
| Старейшина Регистрация: 22.10.2010 Адрес: Васильевка (Запорожская обл.) Возраст: 35 
					Сообщений: 4,174
				 Вы сказали Спасибо: 323 
		
			
				Поблагодарили 233 раз(а) в 189 сообщениях
			
		
	 Репутация: 919 |  Re: Макеты яшиков 
			
			НУ это про 15% виртуальное удлиннение порта, если он у стенки   к длине прибавть около 15% длины. | 
|   |     | 
|  22.10.2011, 23:30 | #14 | 
| Старейшина Регистрация: 21.09.2007 Адрес: Киев Возраст: 57 
					Сообщений: 1,446
				 Вы сказали Спасибо: 128 
		
			
				Поблагодарили 422 раз(а) в 191 сообщениях
			
		
	 Репутация: 628 |  Re: Макеты яшиков Читайте литературу. Ссылку быстро не нашёл.   | 
|   |     | 
|  26.10.2011, 11:34 | #17 | 
| Старейшина Регистрация: 21.09.2007 Адрес: Киев Возраст: 57 
					Сообщений: 1,446
				 Вы сказали Спасибо: 128 
		
			
				Поблагодарили 422 раз(а) в 191 сообщениях
			
		
	 Репутация: 628 |  Re: Макеты яшиков 
			
			Я думаю, это бесполезная тема. таких рисуночков у меня на компе метров двести. За 20 лет ни одним не воспользовался. Всегда было необходимо что-то сделать своё, не так, по другому. Сам считал, чертил, измерял, проверял. Не засоряйте интернет, он и так помойка. | 
|   |     | 
|  01.11.2011, 14:22 | #19 | 
| Регистрация: 13.01.2011 Адрес: Хмельницкий Возраст: 51 
					Сообщений: 142
				 Вы сказали Спасибо: 5 
		
			
				Поблагодарили 21 раз(а) в 19 сообщениях
			
		
	 Репутация: 28 |  Re: Макеты ящиков 
			
			http://www.avtozvuk.com/az/2001/10/p56-59.htm Вот ссылочка,многое становится понятным. А по поводу макетов-каждый проект по своему уникальный,повторять за кем-то не всегда получается,да и критерии почти всегда разные.Так что приходится в каждом конкретном случае придумывать все по новому. | 
|   |     | 
|  19.12.2011, 22:16 | #20 | 
| Регистрация: 17.11.2011 Адрес: Киев Возраст: 40 
					Сообщений: 1,293
				 Вы сказали Спасибо: 13 
		
			
				Поблагодарили 3 раз(а) в 3 сообщениях
			
		
	 Репутация: 149 |  Re: Макеты ящиков 
			
			а как по мне- тема нужная, только хорошо б к этим ящикам писать под какой дин он строился и в какую машуну устанавливался, может кому и пригодится, меньше гемороя будет имхо.....
		 | 
|   |     | 
|  | 
| Здесь присутствуют: 1 (пользователей: 0 , гостей: 1) | |
| 
 | 
 | 
|  Похожие темы | ||||
| Тема | Автор | Раздел | Ответов | Последнее сообщение | 
| (запчасти) Пару ящиков сеток на динамики. | Nos music | Аксессуары, кроссоверы и прочее... | 189 | 24.01.2015 22:54 | 
| Напомните о плюсах и минусах ящиков в двери | Lukasarts | Бюджетный автозвук и песочница. | 10 | 18.07.2013 19:54 | 
| Поделитесь технологией постройки дверных ящиков. | Gt-RRRR | Практические уроки, технологии и материалы | 12 | 18.01.2011 22:36 | 
| Строительство ящиков в двери. Нужно совет. | omel | Практические уроки, технологии и материалы | 37 | 07.10.2010 13:12 | 
| Материалы для ящиков - чему отдать предпочтение | kkk | Практические уроки, технологии и материалы | 15 | 25.06.2007 16:54 |