Всё об автозвуке

Вернуться   Всё об автозвуке > Новичкам > Бюджетный автозвук и песочница.
Регистрация Новые сообщения Правила форума Справка Сообщество Календарь Поиск

Важная информация

Бюджетный автозвук и песочница. Раздел для новичков и тех, кто хочет пострроить простенькую аудиосистему с минимальными затратами.

Ответ
 
Опции темы Опции просмотра
Старый 21.10.2011, 14:53   #1
sinyagaev
 
Аватар для sinyagaev
 
Регистрация: 07.10.2010
Адрес: Nova Kahovka
Сообщений: 413
Вы сказали Спасибо: 21
Поблагодарили 29 раз(а) в 22 сообщениях
Репутация: 95
По умолчанию Макеты ящиков

Предлагаю развить тему с (макетами, чертежами, размерами,рисунками и т.д.) Для тех кому лень, неумеет,нет времени и т.д. считать яшики самостояельно.
буду первым:
Миниатюры
Нажмите на изображение для увеличения
Название: 575a59ce7e51019004121e57c1f235cb.jpg
Просмотров: 1365
Размер:	49.6 Кб
ID:	11658   Нажмите на изображение для увеличения
Название: b9a7dc8b7953.jpg
Просмотров: 1404
Размер:	105.8 Кб
ID:	11659  

Нажмите на изображение для увеличения
Название: user3339_pic7367_1282471510.jpg
Просмотров: 1265
Размер:	19.3 Кб
ID:	11660   Нажмите на изображение для увеличения
Название: alpine 12''x2.JPG
Просмотров: 1251
Размер:	71.5 Кб
ID:	11661  

Нажмите на изображение для увеличения
Название: 9d8ee41a9274.jpg
Просмотров: 1304
Размер:	63.9 Кб
ID:	11662   Нажмите на изображение для увеличения
Название: MzEwMDMwNTU31zdOSkuxzNU3Ti0vzcoBAA$$.jpg
Просмотров: 1269
Размер:	86.1 Кб
ID:	11663  

Нажмите на изображение для увеличения
Название: user3339_pic7368_1282471510.jpg
Просмотров: 1315
Размер:	17.0 Кб
ID:	11664   Нажмите на изображение для увеличения
Название: user3339_pic7369_1282471510.jpg
Просмотров: 1365
Размер:	17.1 Кб
ID:	11665  

Нажмите на изображение для увеличения
Название: user3339_pic7781_1285135556.jpg
Просмотров: 1274
Размер:	38.7 Кб
ID:	11666   Нажмите на изображение для увеличения
Название: user3339_pic7782_1285135556.jpg
Просмотров: 1311
Размер:	28.0 Кб
ID:	11667  

Нажмите на изображение для увеличения
Название: y_f86fd030.jpg
Просмотров: 1329
Размер:	37.1 Кб
ID:	11668  
sinyagaev вне форума   Ответить с цитированием Вверх
Старый 21.10.2011, 15:36   #2
sinyagaev
 
Аватар для sinyagaev
 
Регистрация: 07.10.2010
Адрес: Nova Kahovka
Сообщений: 413
Вы сказали Спасибо: 21
Поблагодарили 29 раз(а) в 22 сообщениях
Репутация: 95
По умолчанию Re: Макеты яшиков

ешё
Миниатюры
Нажмите на изображение для увеличения
Название: 15c.jpg
Просмотров: 1284
Размер:	40.9 Кб
ID:	11670   Нажмите на изображение для увеличения
Название: 15z.jpg
Просмотров: 1854
Размер:	32.4 Кб
ID:	11671  

Нажмите на изображение для увеличения
Название: 50L-38Hz-3D---.JPG
Просмотров: 1418
Размер:	129.0 Кб
ID:	11672   Нажмите на изображение для увеличения
Название: 60lt@28Hz..png
Просмотров: 1307
Размер:	38.9 Кб
ID:	11673  

Нажмите на изображение для увеличения
Название: Ящ.jpg
Просмотров: 1273
Размер:	50.8 Кб
ID:	11674   Нажмите на изображение для увеличения
Название: ЧЕРТЕЖ ДЛЯ САНДАЛЯ.jpg
Просмотров: 1327
Размер:	46.6 Кб
ID:	11675  

Нажмите на изображение для увеличения
Название: Рка 2.jpg
Просмотров: 1356
Размер:	38.1 Кб
ID:	11676   Нажмите на изображение для увеличения
Название: Р-ка2.jpg
Просмотров: 1272
Размер:	136.1 Кб
ID:	11677  

Нажмите на изображение для увеличения
Название: Р-ка1.jpg
Просмотров: 1463
Размер:	145.4 Кб
ID:	11678   Нажмите на изображение для увеличения
Название: короб паука1.JPG
Просмотров: 1232
Размер:	50.2 Кб
ID:	11679  

Нажмите на изображение для увеличения
Название: вариант2 под са 12.jpg
Просмотров: 1213
Размер:	53.0 Кб
ID:	11680   Нажмите на изображение для увеличения
Название: y_3f889054.jpg
Просмотров: 1267
Размер:	47.5 Кб
ID:	11681  

Изображения
 
sinyagaev вне форума   Ответить с цитированием Вверх
Старый 21.10.2011, 18:55   #3
ФАНТОР
Старейшина
 
Аватар для ФАНТОР
 
Регистрация: 06.09.2009
Адрес: Запорожье
Возраст: 58
Сообщений: 1,163
Вы сказали Спасибо: 82
Поблагодарили 119 раз(а) в 98 сообщениях
Репутация: 177
По умолчанию Re: Макеты яшиков

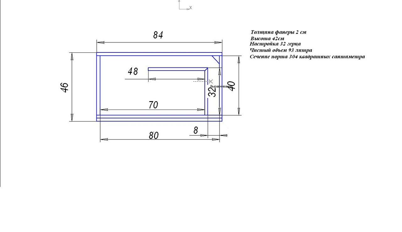
Чего-то там не то См.пост 1 рис 1.(там где 45литров с настройкой якобы 38 гц)
длина порта 420+230 это 650 или 65см(не доглядел - с учетом толщины стенок еще +4см-итого 69см).А порт указан 75см длина.
При 65см длине объем ящика (и это без без учета динамика,но с вычетом объема фазика и его внутренней стенки) выходит в районе 49л, а при 75см в районе 46л(соответственно при 69см где-то посередине).И где тут правда?
Может лучше таки не лениться, а считать самому.Действия то простые.

Последний раз редактировалось ФАНТОР; 21.10.2011 в 19:39. Причина: Добавлено сообщение
ФАНТОР вне форума   Ответить с цитированием Вверх
Старый 21.10.2011, 19:43   #4
sinyagaev
 
Аватар для sinyagaev
 
Регистрация: 07.10.2010
Адрес: Nova Kahovka
Сообщений: 413
Вы сказали Спасибо: 21
Поблагодарили 29 раз(а) в 22 сообщениях
Репутация: 95
По умолчанию Re: Макеты яшиков

Цитата:
Сообщение от ФАНТОР Посмотреть сообщение
Чего-то там не то См.пост 1 рис 1.(там где 45литров с настройкой якобы 38 гц)
длина порта 420+230 это 650 или 65см(не доглядел - с учетом толщины стенок еще +4см-итого 69см).А порт указан 75см длина.
При 65см длине объем ящика (и это без без учета динамика,но с вычетом объема фазика и его внутренней стенки) выходит в районе 49л, а при 75см в районе 46л(соответственно при 69см где-то посередине).И где тут правда?
Может лучше таки не лениться, а считать самому.Действия то простые.
и в правду ошибочка. там вместо 65 написали просто 75
sinyagaev вне форума   Ответить с цитированием Вверх
Старый 21.10.2011, 19:49   #5
ФАНТОР
Старейшина
 
Аватар для ФАНТОР
 
Регистрация: 06.09.2009
Адрес: Запорожье
Возраст: 58
Сообщений: 1,163
Вы сказали Спасибо: 82
Поблагодарили 119 раз(а) в 98 сообщениях
Репутация: 177
По умолчанию Re: Макеты яшиков

Все одно не то, к 230 надо еще добавить по 20 с обоих сторон-толщина стенок.Ведь 230 изнутри указано.Так что правильно 69см.Ну на закругление еще можно пару накинуть.
ФАНТОР вне форума   Ответить с цитированием Вверх
Старый 21.10.2011, 20:03   #6
sinyagaev
 
Аватар для sinyagaev
 
Регистрация: 07.10.2010
Адрес: Nova Kahovka
Сообщений: 413
Вы сказали Спасибо: 21
Поблагодарили 29 раз(а) в 22 сообщениях
Репутация: 95
По умолчанию Re: Макеты яшиков

Цитата:
Сообщение от ФАНТОР Посмотреть сообщение
Все одно не то, к 230 надо еще добавить по 20 с обоих сторон-толщина стенок.Ведь 230 изнутри указано.Так что правильно 69см.Ну на закругление еще можно пару накинуть.
ггг там всё правильно!!!
смотри всего 69см ето если не учитывать тот квадрат где закругление. (розчёты его не учитывают) а если учесть то +ещё 6см 69+6=75
Миниатюры
Нажмите на изображение для увеличения
Название: 575a59ce7e51019004121e57c1f235cb.jpg
Просмотров: 1233
Размер:	48.8 Кб
ID:	11685  
sinyagaev вне форума   Ответить с цитированием Вверх
Старый 21.10.2011, 20:25   #7
ФАНТОР
Старейшина
 
Аватар для ФАНТОР
 
Регистрация: 06.09.2009
Адрес: Запорожье
Возраст: 58
Сообщений: 1,163
Вы сказали Спасибо: 82
Поблагодарили 119 раз(а) в 98 сообщениях
Репутация: 177
По умолчанию Re: Макеты яшиков

Все правильно.Только удобнее для понимания 2 раза по 3 см
Так нагляднее.И все понятно.С объемчиком там все одно не чисто и при 75.

Последний раз редактировалось ФАНТОР; 19.05.2012 в 15:00.
ФАНТОР вне форума   Ответить с цитированием Вверх
Старый 21.10.2011, 20:31   #8
sinyagaev
 
Аватар для sinyagaev
 
Регистрация: 07.10.2010
Адрес: Nova Kahovka
Сообщений: 413
Вы сказали Спасибо: 21
Поблагодарили 29 раз(а) в 22 сообщениях
Репутация: 95
По умолчанию Re: Макеты яшиков

если быть точным то там 45.632литра.
sinyagaev вне форума   Ответить с цитированием Вверх
Старый 21.10.2011, 20:35   #9
ФАНТОР
Старейшина
 
Аватар для ФАНТОР
 
Регистрация: 06.09.2009
Адрес: Запорожье
Возраст: 58
Сообщений: 1,163
Вы сказали Спасибо: 82
Поблагодарили 119 раз(а) в 98 сообщениях
Репутация: 177
По умолчанию Re: Макеты яшиков

Цитата:
Сообщение от sinyagaev Посмотреть сообщение
если быть точным то там 45.632литра.
Растешь!!!
ФАНТОР вне форума   Ответить с цитированием Вверх
Старый 22.10.2011, 10:24   #10
SOVA
Старейшина
 
Аватар для SOVA
 
Регистрация: 21.09.2007
Адрес: Киев
Возраст: 57
Сообщений: 1,446
Вы сказали Спасибо: 128
Поблагодарили 422 раз(а) в 191 сообщениях
Репутация: 628
По умолчанию Re: Макеты яшиков

Цитата:
Сообщение от sinyagaev Посмотреть сообщение
если быть точным то там 45.632литра.
Молодец, умник!
А краевой эффект расположения порта возле стенки учитывал?
К вычисленной длине порта прибавь 4 - 5 см. с внутренней стороны и 2-3см с внешней. В сумме добавь 7 см.
Читайте, учитесь, всё у вас получится!
SOVA вне форума   Ответить с цитированием Вверх
Старый 22.10.2011, 12:12   #11
жан
 
Аватар для жан
 
Регистрация: 07.01.2011
Адрес: Первомайск Николаевской
Возраст: 67
Сообщений: 718
Вы сказали Спасибо: 91
Поблагодарили 10 раз(а) в 10 сообщениях
Репутация: 74
По умолчанию Re: Макеты яшиков

из этого становится понятно,что тема оч.не проста и оч.многим просто не по зубам.,. если обсуждение будет чуть подробнее - это уже будет не ликбез,а хорошее ПТУ!
АФ-Фтору топика - респект!
жан вне форума   Ответить с цитированием Вверх
Старый 22.10.2011, 18:23   #12
sinyagaev
 
Аватар для sinyagaev
 
Регистрация: 07.10.2010
Адрес: Nova Kahovka
Сообщений: 413
Вы сказали Спасибо: 21
Поблагодарили 29 раз(а) в 22 сообщениях
Репутация: 95
По умолчанию Re: Макеты яшиков

Цитата:
Сообщение от SOVA Посмотреть сообщение
Молодец, умник!
А краевой эффект расположения порта возле стенки учитывал?
К вычисленной длине порта прибавь 4 - 5 см. с внутренней стороны и 2-3см с внешней. В сумме добавь 7 см.
Читайте, учитесь, всё у вас получится!
не до конца понял. По вашим розщётам сколько получилось в сумме?

Добавлено через 1 минуту
Цитата:
Сообщение от жан Посмотреть сообщение
из этого становится понятно,что тема оч.не проста и оч.многим просто не по зубам.,. если обсуждение будет чуть подробнее - это уже будет не ликбез,а хорошее ПТУ!
АФ-Фтору топика - респект!
спс.
оказывается что нужно не просто картинки смотреть )

Последний раз редактировалось sinyagaev; 22.10.2011 в 18:25. Причина: Добавлено сообщение
sinyagaev вне форума   Ответить с цитированием Вверх
Старый 22.10.2011, 18:43   #13
K.O.S.
Старейшина
 
Аватар для K.O.S.
 
Регистрация: 22.10.2010
Адрес: Васильевка (Запорожская обл.)
Возраст: 35
Сообщений: 4,174
Вы сказали Спасибо: 323
Поблагодарили 233 раз(а) в 189 сообщениях
Репутация: 919
Отправить сообщение для K.O.S. с помощью ICQ Отправить сообщение для K.O.S. с помощью Skype™
По умолчанию Re: Макеты яшиков

НУ это про 15% виртуальное удлиннение порта, если он у стенки к длине прибавть около 15% длины.
K.O.S. вне форума   Ответить с цитированием Вверх
Старый 22.10.2011, 23:30   #14
SOVA
Старейшина
 
Аватар для SOVA
 
Регистрация: 21.09.2007
Адрес: Киев
Возраст: 57
Сообщений: 1,446
Вы сказали Спасибо: 128
Поблагодарили 422 раз(а) в 191 сообщениях
Репутация: 628
По умолчанию Re: Макеты яшиков

Цитата:
Сообщение от K.O.S. Посмотреть сообщение
НУ это про 15% виртуальное удлиннение порта, если он у стенки к длине прибавть около 15% длины.
Нет, если порт в воздухе (внутри ящика вдали от стенок), то 30% от диаметра, если заподлицо с панелью, то 45-50%, а если у стенки, то 60% от диаметра или ширины (для прямоугольного).
Читайте литературу. Ссылку быстро не нашёл.
SOVA вне форума   Ответить с цитированием Вверх
Старый 25.10.2011, 21:36   #15
sinyagaev
 
Аватар для sinyagaev
 
Регистрация: 07.10.2010
Адрес: Nova Kahovka
Сообщений: 413
Вы сказали Спасибо: 21
Поблагодарили 29 раз(а) в 22 сообщениях
Репутация: 95
По умолчанию Re: Макеты яшиков

ешё
Миниатюры
Нажмите на изображение для увеличения
Название: 15b.jpg
Просмотров: 1351
Размер:	93.4 Кб
ID:	11741   Нажмите на изображение для увеличения
Название: 546fa23c6063.jpg
Просмотров: 1587
Размер:	28.4 Кб
ID:	11746  

Нажмите на изображение для увеличения
Название: 120628119.jpg
Просмотров: 1209
Размер:	43.7 Кб
ID:	11748   Нажмите на изображение для увеличения
Название: 123990600.jpg
Просмотров: 1168
Размер:	40.4 Кб
ID:	11749  

Нажмите на изображение для увеличения
Название: 167633983.jpg
Просмотров: 1330
Размер:	61.6 Кб
ID:	11750  
Изображения
      
sinyagaev вне форума   Ответить с цитированием Вверх
Старый 25.10.2011, 21:41   #16
sinyagaev
 
Аватар для sinyagaev
 
Регистрация: 07.10.2010
Адрес: Nova Kahovka
Сообщений: 413
Вы сказали Спасибо: 21
Поблагодарили 29 раз(а) в 22 сообщениях
Репутация: 95
По умолчанию Re: Макеты яшиков

Миниатюры
Нажмите на изображение для увеличения
Название: cc7c41f990c2.jpg
Просмотров: 1264
Размер:	46.3 Кб
ID:	11754   Нажмите на изображение для увеличения
Название: d641e7ac7cc4.jpg
Просмотров: 1257
Размер:	26.8 Кб
ID:	11757  

Нажмите на изображение для увеличения
Название: image.jpg
Просмотров: 1227
Размер:	72.9 Кб
ID:	11759   Нажмите на изображение для увеличения
Название: Magnitola-Avtozvuk_78479_NSv218pic1.jpg
Просмотров: 1149
Размер:	20.1 Кб
ID:	11760  

Нажмите на изображение для увеличения
Название: Magnitola-Avtozvuk_124580_Безымянный.jpg
Просмотров: 1356
Размер:	35.1 Кб
ID:	11761   Нажмите на изображение для увеличения
Название: MTX. Размеры ящика..jpg
Просмотров: 1306
Размер:	57.6 Кб
ID:	11762  

Нажмите на изображение для увеличения
Название: oris 15.jpg
Просмотров: 1521
Размер:	35.3 Кб
ID:	11763   Нажмите на изображение для увеличения
Название: sab 15.jpg
Просмотров: 1235
Размер:	52.2 Кб
ID:	11764  

Нажмите на изображение для увеличения
Название: Shablo 15.jpg
Просмотров: 1196
Размер:	15.4 Кб
ID:	11765   Нажмите на изображение для увеличения
Название: tttlineju9.md.jpg
Просмотров: 1250
Размер:	21.7 Кб
ID:	11766  

Изображения
      
sinyagaev вне форума   Ответить с цитированием Вверх
Старый 26.10.2011, 11:34   #17
SOVA
Старейшина
 
Аватар для SOVA
 
Регистрация: 21.09.2007
Адрес: Киев
Возраст: 57
Сообщений: 1,446
Вы сказали Спасибо: 128
Поблагодарили 422 раз(а) в 191 сообщениях
Репутация: 628
По умолчанию Re: Макеты яшиков

Я думаю, это бесполезная тема. таких рисуночков у меня на компе метров двести. За 20 лет ни одним не воспользовался. Всегда было необходимо что-то сделать своё, не так, по другому. Сам считал, чертил, измерял, проверял.

Не засоряйте интернет, он и так помойка.
SOVA вне форума   Ответить с цитированием Вверх
Старый 26.10.2011, 22:42   #18
sinyagaev
 
Аватар для sinyagaev
 
Регистрация: 07.10.2010
Адрес: Nova Kahovka
Сообщений: 413
Вы сказали Спасибо: 21
Поблагодарили 29 раз(а) в 22 сообщениях
Репутация: 95
По умолчанию Re: Макеты яшиков

Цитата:
Сообщение от SOVA Посмотреть сообщение
Я думаю, это бесполезная тема. таких рисуночков у меня на компе метров двести. За 20 лет ни одним не воспользовался. Всегда было необходимо что-то сделать своё, не так, по другому. Сам считал, чертил, измерял, проверял.
если бы вы скинули наглядные фото примеры суда, думаю вам были бы благодарны "по крайней мере Я точно"
sinyagaev вне форума   Ответить с цитированием Вверх
Старый 01.11.2011, 14:22   #19
Sergey-Xm
 
Аватар для Sergey-Xm
 
Регистрация: 13.01.2011
Адрес: Хмельницкий
Возраст: 51
Сообщений: 142
Вы сказали Спасибо: 5
Поблагодарили 21 раз(а) в 19 сообщениях
Репутация: 28
По умолчанию Re: Макеты ящиков

http://www.avtozvuk.com/az/2001/10/p56-59.htm
Вот ссылочка,многое становится понятным.
А по поводу макетов-каждый проект по своему уникальный,повторять за кем-то не всегда получается,да и критерии почти всегда разные.Так что приходится в каждом конкретном случае придумывать все по новому.
Sergey-Xm вне форума   Ответить с цитированием Вверх
Старый 19.12.2011, 22:16   #20
муравей
 
Аватар для муравей
 
Регистрация: 17.11.2011
Адрес: Киев
Возраст: 40
Сообщений: 1,293
Вы сказали Спасибо: 13
Поблагодарили 3 раз(а) в 3 сообщениях
Репутация: 149
По умолчанию Re: Макеты ящиков

а как по мне- тема нужная, только хорошо б к этим ящикам писать под какой дин он строился и в какую машуну устанавливался, может кому и пригодится, меньше гемороя будет имхо.....
муравей вне форума   Ответить с цитированием Вверх
Ответ


Здесь присутствуют: 1 (пользователей: 0 , гостей: 1)
 

Ваши права в разделе
Вы не можете создавать новые темы
Вы не можете отвечать в темах
Вы не можете прикреплять вложения
Вы не можете редактировать свои сообщения

BB коды Вкл.
Смайлы Вкл.
[IMG] код Вкл.
HTML код Выкл.

Быстрый переход

Похожие темы
Тема Автор Раздел Ответов Последнее сообщение
(запчасти) Пару ящиков сеток на динамики. Nos music Аксессуары, кроссоверы и прочее... 189 24.01.2015 22:54
Напомните о плюсах и минусах ящиков в двери Lukasarts Бюджетный автозвук и песочница. 10 18.07.2013 19:54
Поделитесь технологией постройки дверных ящиков. Gt-RRRR Практические уроки, технологии и материалы 12 18.01.2011 22:36
Строительство ящиков в двери. Нужно совет. omel Практические уроки, технологии и материалы 37 07.10.2010 13:12
Материалы для ящиков - чему отдать предпочтение kkk Практические уроки, технологии и материалы 15 25.06.2007 16:54


Текущее время: 16:37. Часовой пояс GMT +2.


Перевод: zCarot
autozvuk.org ©